FAW型全自动一体化净水器集混合反应、絮凝沉淀、过滤出水为一体, 设备通过自身的特殊装置结合电气控制自动完成加药、配水、排污泥、反冲、排污等运行程序。全自动净水器自动化运行,无需人员操作,避免了人为操作造成的水质不稳定,使处理后的水质优良稳定。
FAW型全自动一体化净水器特别适用于工矿企业的给水处理和中、小型自来水厂的自动化管理。全自动净水器是实现水厂自动化管理的重要单元,无需人员操作、全自动运行的一体化净水器装置,配合自动加药装置及消毒设备,即可成为一个具有全套功能的净水站(厂)。
【处理水量】
我公司可按要求专门设计。
【标注示例】
FAW - X
│ └── 产水量 (m3/h)
└───── 全自动净水器
【设备优点】
FAW型全自动一体化净水器,具有净水效果好、范围广、节能、占地小、耗水量少,节水、节电、节人工的优点。
1、运行管理方便——全自动净水器自动化程度高,值班人员只需定时作水质监测工作,无需操作管理。
2、先进——混凝澄清和过滤工艺巧妙地有机组合成一体化,具有自集水系统和自动反冲洗功能,无需另设反冲洗水泵和空压机,既节省基建投资又节省水源。
3、节能——具有较小的进水能耗和节约冲洗水量。
4、高效——混凝澄清和过滤净水效果显著,滤层冲洗快速干净。
5、工程基建量小、投产快,易组合配套,适合建造中小型自来水厂。
【适用范围】
1、水浊度小于3000mg/L的各类江、河、湖、水库等为水源的农村、城镇、工矿企业的水厂,可作为主要的净水处理装置。
2、对于低温、低浊、有季节性藻类的湖泊水源,全自动净水器有其特殊的适应能力。
3、可用于高纯水、饮料工业用水、锅炉用水等作前置水处理的预处理设备。
4、用于各类工业循环水系统,全自动净水器可有效而大幅度地提高循环用水水质。
5、用于中水回用系统,以污水厂污水处理后的出水为水源,净化后回用水的处理设备。
【主要技术特性】
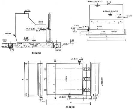
1、FAW型全自动一体化净水器,上层为节能新型水力——澄清——整流装置——斜板澄清器,下层均质石英砂滤料滤池。
2、十分节能——具有较小的进水能耗和节约冲洗水量。
3、高效——混凝澄清和过滤净水效果显著滤层冲洗快速干净。
4、构造合理——混凝澄清和过滤工艺巧妙地立体有机组合一体。
5、运行管理方便——FA型全自动一体化净水器运行为自动程序操作或手动。
【技术参数】
·适用原水浊度: ≤3000mg/L
·适用原水温度:常温
·净水出水浊度: ≤3mg/L
·沉淀区设计表面负荷: 7~8m3/h.m2
·过滤区设计滤速:8~10m/h
·滤池冲洗强度:14~17L/S.M2
·冲洗历时:t=4~6min
【自行运行操作程序】
1、打开进水阀。
2、当过滤层积污到一定程度,全自动净水器自动进行反冲洗,历时约4~6分钟。
3、FA型全自动一体化净水器的排泥为定时自动排泥。
【外形图、基础布置图】







